Villa a schiera in vendita

Pieve Emanuele, Via Paganini
€ 259.000
Prezzo aggiornato
4 locali 4 locali
134 Mq 134 Mq
2 bagni 2 bagni

Villa a schiera in vendita

Pieve Emanuele, Via Paganini

Descrizione annuncio

Via Paganini – Pieve Emanuele (MI): Nel cuore di Pieve Emanuele , A pochi minuti in auto dalla stazione ferroviaria di Pieve Emanuele , la tangenziale Ovest è raggiungibile in pochi minuti, così come il polo commerciale di Scalo Milano e l’Istituto Humanitas di Rozzano, proponiamo una VILLA A SCHIERA EDIFICATA NEL 2005, disposta su due livelli, con DOPPIO POSTO AUTO.

La zona è ben servita da scuole, mezzi pubblici, supermercati e principali collegamenti stradali verso Milano e il Sud Milano, rendendo questa soluzione ideale per chi cerca indipendenza senza rinunciare alla comodità della città.

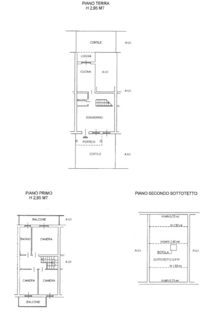
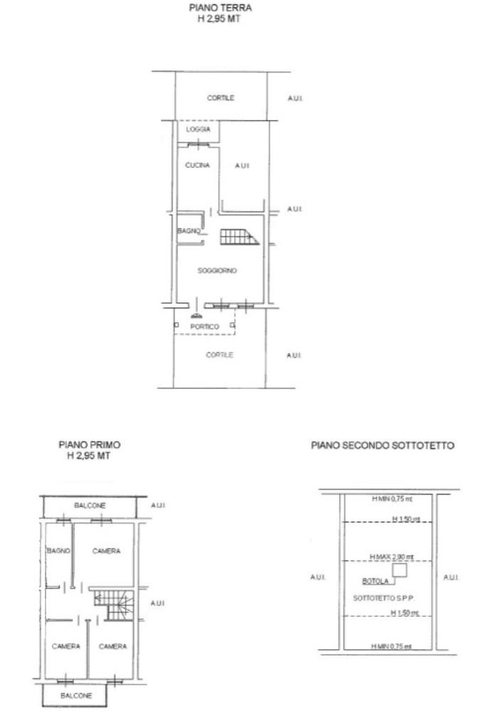
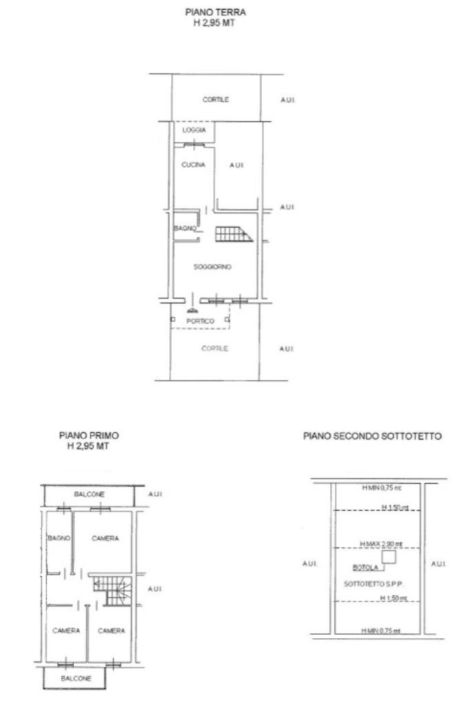
La soluzione risulta essere così composta : Appena varcato il cancello d’ingresso, un Giardino privato introduce alla casa, regalando un senso di riservatezza e indipendenza.

Al piano terra, si apre un ampio soggiorno, luminoso e accogliente, La cucina è abitabile, con metrature generose che permettono di ospitare anche un tavolo da pranzo per 4-6 persone.

per gli amanti delle ampie zone living con cucina a vista, con dei semplici lavori ed eliminando le due pareti che li separano, si potrebbero fondere i due ambienti creando così un ingresso diretto in zona living con cucina a vista.

Completa il piano un bagno di servizio cieco, con box doccia, comodo per ospiti o per l’uso quotidiano.

Salendo al primo piano, troviamo la zona notte ove troviamo : una camera matrimoniale con porta finestra che da accesso ad un ampio terrazzo, con piacevole affaccio sul verde e due camerette , ed Il secondo bagno, finestrato con vasca

Al piano superiore si accede a un sottotetto/mansarda.

La villa si presenta IN OTTIMO STATO INTERNO, con pavimentazione in ceramica in tutti gli ambienti. Inoltre, infissi in doppio vetro PVC , porta blindata ed aria condizionata.

Riscaldamento autonomo.

VALUTAZIONI GRATUITE Ogni agenzia ha un proprio titolare ed è autonoma. Le info non sono contrattuali. Presso La Nostra Agenzia, È Possibile Su Richiesta, Grazie Ai Nostri Professionisti Della Kiron, Ricevere Una Consulenza Gratuita Ed Accedere Ad Un'ampia Gamma Di Prodotti Creditizi E Assicurativi

Mostra tutto

Nelle vicinanze

Trasporto pubblico Trasporto pubblico
Locate Triulzi
Locate Triulzi
2,8 Km
220
220
180 m
220 Donizetti
220 Donizetti
390 m
Pieve Emanuele
Pieve Emanuele
690 m
Villamaggiore
Villamaggiore
2,4 Km
Ricariche auto elettriche Ricariche auto elettriche
BeCharge Cascina Vione
2,0 Km
BeCharge Don Silvio Coira
2,3 Km
EnelX EVA+ Locate di Triulzi Shopping Village
2,7 Km
Scalo Milano
2,7 Km
Scuole Scuole
Scuole
160 m
Centro Polifunzionale
420 m
Media Antonio Vivaldi
470 m
Scuola media Viquarterio
1,2 Km
Scuola media
1,2 Km
Farmacia Farmacia
Farmacia comunale 2
280 m
Farmacia comunale 1
760 m
Dott.ssa Federica Belloni
1,6 Km
Farmacia
2,6 Km
Farmacia Dottor Binotti
2,7 Km
Supermercati Supermercati
Eurospin
610 m
Tigros
640 m
Simply Market
1,6 Km
Carrefour Express
3,0 Km
Negozi Negozi
Le Monelle
450 m
Il Pane dei Pini
480 m
Pasticceria
510 m
Macelleria salumeria minimarket
570 m
Negozi
2,5 Km
Bar Bar
Il Bar dei Pini
600 m
Roby's Bar
1,7 Km
Le Bollicine
2,5 Km
bar colonne
2,9 Km
Ristoranti Ristoranti
Pizzeria
600 m
La Chimera
650 m
Ristoranti
1,9 Km
Doppio Malto
2,5 Km
Indian Soul Café
2,5 Km
Mostra tutto

Caratteristiche

Rif.:
61118722
Piano:
2 di 2 (Piano basso)
Posti auto:
2
Terrazzi:
1
Camere da letto:
3
Arredamento:
Parziale
Mostra tutto
Prezzo Prezzo
€ 259.000
Rata mutuo Rata mutuo
€ 1.194 / mese
Spese annue Spese annue
€ 600
Proponi il tuo prezzoProponi il tuo prezzo

Classe Energetica

B
B
B
B
B
B
B
B
B
EP globale non rinnovabile:
1.00 kW h/m² anno
EP globale rinnovabile:
1.00 kW h/m² anno
EP invernale del fabbricato:
EP estiva del fabbricato:
Anno di costruzione:
2005
Riscaldamento:
Autonomo
Tipo impianto:
A radiatori
Tipo alimentazione:
Metano

Prezzo ridotto di €1 (8%%)

Ti interessa visionare l'immobile?

Fissa un appuntamento  Fissa un appuntamento

Richiedi informazioni

* Questi campi sono obbligatori

Calcola il tuo mutuo

Semplice e senza impegno
Anticipo

( % )
Mutuo

( % )

pochi semplici passi

inserisci i tuoi dati
Questionario completato
Grazie per aver richiesto un appuntamento senza impegno con un nostro Consulente del Credito e Assicurativo.

Hai inserito correttamente tutti i dati necessari e a breve riceverai una e-mail con un link da convalidare per inviare i tuoi dati.
Affiliato
Sviluppo Immobiliare Pieve E Locate Srl
Via Roma, 11 20072 Pieve Emanuele (MI)

Il nostro staff


  • Christian Celseti
    Collaboratore

  • Fleris Hasaj
    Responsabile
Via Roma, 11 20072 Pieve Emanuele (MI)
Zona: Pieve Emanuele
Mostra su mappa
Orari: Lunedì - Venerdì 09.00-20.00----- Sabato 09.00-17.00
Affiliato
Sviluppo Immobiliare Pieve E Locate Srl
Via Roma, 11 20072 Pieve Emanuele (MI)

2025 Tecnocasa Franchising S.p.A. - P. IVA 08365160152 - Via Monte Bianco 60/A 20089 Rozzano (MI). Ogni agenzia ha un proprio titolare ed è autonoma. Privacy policy | Policy utilizzo | Cookie policy