Villa a schiera in vendita

Locate Triulzi, Via Delle Betulle
€ 355.000
Prezzo aggiornato
5 locali 5 locali
150 Mq 150 Mq
2 bagni 2 bagni

Villa a schiera in vendita

Locate Triulzi, Via Delle Betulle

Descrizione annuncio

Nel contesto di Locate di Triulzi, proponiamo in vendita un’elegante VILLA A SCHIERA IN OTTIMO STATO, caratterizzata da doppia esposizione, spazi ben distribuiti e ambienti luminosi, ideale per chi desidera indipendenza, comfort e qualità abitativa senza rinunciare alla comodità dei servizi.

L’abitazione è valorizzata da un giardino anteriore privato, curato e accogliente, perfetto come spazio verde da vivere in ogni stagione, ideale per momenti di relax all’aperto o convivialità in famiglia.

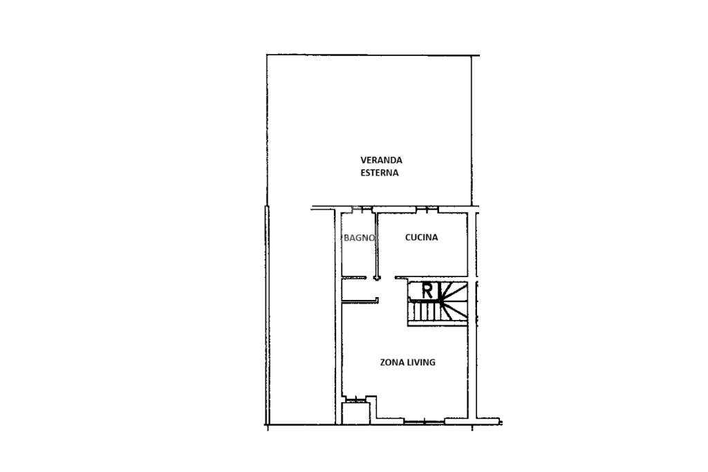
L’ingresso, tramite porta blindata, introduce direttamente nella zona living, un ambiente ampio e armonioso, pensato per accogliere e offrire comfort quotidiano.

Dal disimpegno si accede a un bagno di servizio finestrato, pratico e ben organizzato, oltre alla CUCINA ABITABILE, ambiente funzionale e ben definito, ideale per chi ama vivere la cucina come vero cuore della casa. Da qui si accede ad una VERANDA, uno spazio aggiuntivo versatile, perfetto per pranzi all’aperto, area relax o zona hobby, in continuità con l’esterno.

Salendo al piano superiore si sviluppa la ZONA NOTTE, studiata per garantire privacy e tranquillità. Qui troviamo una prima camera, luminosa e ben proporzionata; un bagno a servizio del piano, finestrato; una seconda e terza camera, entrambe versatili e adatte a soddisfare diverse esigenze abitative, che si tratti di camere per figli, studio o stanza ospiti. Completa il livello un comodo ripostiglio, elemento sempre prezioso per mantenere ordine e funzionalità.

Proseguendo ulteriormente, si accede all’ambiente mansardato, uno spazio ampio e accogliente che rappresenta un vero valore aggiunto della proprietà. Grazie alla sua metratura e conformazione, si presta perfettamente alla realizzazione di un ulteriore ambiente personalizzato: sala cinema, studio professionale, area relax, palestra domestica o ulteriore camera, offrendo così massima flessibilità e possibilità di personalizzazione.

La villa si presenta in ottime condizioni manutentive, con finiture curate e ambienti ben conservati, pronta per essere abitata senza necessità di interventi immediati.

Completa e valorizza ulteriormente la proprietà la presenza di un BOX DI 30 MQ.

La posizione, inserita in un contesto tranquillo ma ben collegato, consente di raggiungere facilmente servizi, scuole, aree verdi e principali collegamenti, rendendo questa soluzione ideale per famiglie o per chi desidera spazi generosi in un contesto riservato.

I rendering e le proposte d'arredamento mostrate sono da considerarsi puramente indicative di una proposta progettuale e non vincolanti ai fini contrattuali.

VALUTAZIONI GRATUITE Ogni agenzia ha un proprio titolare ed è autonoma. Le info non sono contrattuali. Presso La Nostra Agenzia, È Possibile Su Richiesta, Grazie Ai Nostri Professionisti Della Kiron, Ricevere Una Consulenza Gratuita Ed Accedere Ad Un'ampia Gamma Di Prodotti Creditizi E Assicurativi

Mostra tutto

Nelle vicinanze

Trasporto pubblico Trasporto pubblico
Locate Triulzi
Locate Triulzi
1,2 Km
221
221
160 m
220, 221 Roma
220, 221 Roma
690 m
Pieve Emanuele
Pieve Emanuele
2,4 Km
Ricariche auto elettriche Ricariche auto elettriche
EnelX EVA+ Locate di Triulzi Shopping Village
800 m
U2 Supermercato Opera | EnelX
840 m
Scalo Milano
1,1 Km
COOP Opera
1,2 Km
Scuole Scuole
Scuola elementare Luigi Gemelli
460 m
Scuola media
1,0 Km
Scuola media Viquarterio
1,0 Km
Scuola Media Statale A. Locatelli
1,2 Km
Scuole
1,2 Km
Farmacia Farmacia
Dott.ssa Federica Belloni
680 m
Farmacia Dottor Binotti
1,4 Km
Farmacia comunale 1
1,5 Km
Farmacia
1,6 Km
Farmacia comunale 2
2,0 Km
Supermercati Supermercati
Simply Market
620 m
U2
810 m
Tigotà
840 m
COOP
1,2 Km
Carrefour Express
1,5 Km
Negozi Negozi
Orme
640 m
Negozi
1,4 Km
Macelleria salumeria minimarket
1,7 Km
Pasticceria
1,8 Km
Il Pane dei Pini
1,8 Km
Bar Bar
Roby's Bar
580 m
bar colonne
1,5 Km
Bar
1,6 Km
Il Bar dei Pini
1,7 Km
Bar Cadorna
1,8 Km
Ristoranti Ristoranti
Doppio Malto
580 m
Pizzeria mare e monti
1,2 Km
Grass de Rost
1,5 Km
La Chimera
1,6 Km
Pizzeria
1,7 Km
Mostra tutto

Caratteristiche

Rif.:
61176082
Piano:
2 di 2 (Piano basso)
Box:
1
Balconi:
3
Camere da letto:
4
Arredamento:
Parziale
Mostra tutto
Prezzo Prezzo
€ 355.000
Rata mutuo Rata mutuo
€ 1.648 / mese
Spese annue Spese annue
€ 500
Proponi il tuo prezzoProponi il tuo prezzo

Classe Energetica

E
E
E
E
E
E
E
E
E
EP globale non rinnovabile:
157.82 kW h/m² anno
EP globale rinnovabile:
157.82 kW h/m² anno
EP invernale del fabbricato:
EP estiva del fabbricato:
Anno di costruzione:
2000
Riscaldamento:
Autonomo
Tipo impianto:
A radiatori
Tipo alimentazione:
Metano

Prezzo ridotto di €1 (4%%)

Ti interessa visionare l'immobile?

Fissa un appuntamento  Fissa un appuntamento

Richiedi informazioni

Clicca su Leggi per aprire l'informativa
* Questi campi sono obbligatori

Calcola il tuo mutuo

Semplice e senza impegno
Anticipo

( % )
Mutuo

( % )

pochi semplici passi

inserisci i tuoi dati
Questionario completato
Grazie per aver richiesto un appuntamento senza impegno con un nostro Consulente del Credito e Assicurativo.

Hai inserito correttamente tutti i dati necessari e a breve riceverai una e-mail con un link da convalidare per inviare i tuoi dati.
Affiliato
Sviluppo Immobiliare Pieve E Locate Srl
Via Roma, 11 20072 Pieve Emanuele (MI)

Il nostro staff


  • Christian Celseti
    Collaboratore

  • Fleris Hasaj
    Responsabile
Via Roma, 11 20072 Pieve Emanuele (MI)
Zona: Pieve Emanuele
Mostra su mappa
Orari: Lunedì - Venerdì 09.00-20.00----- Sabato 09.00-17.00
Affiliato
Sviluppo Immobiliare Pieve E Locate Srl
Via Roma, 11 20072 Pieve Emanuele (MI)

2026 Tecnocasa Franchising S.p.A. - P. IVA 08365160152 - Via Monte Bianco 60/A 20089 Rozzano (MI). Ogni agenzia ha un proprio titolare ed è autonoma. Privacy policy | Policy utilizzo | Cookie policy